常陸太田市磯部町1期(限定1棟) [No.376] NEW おすすめ
| 物件名 | 常陸太田市磯部町1期(限定1棟) |
|---|---|
| 価 格 | 2,799万円 |
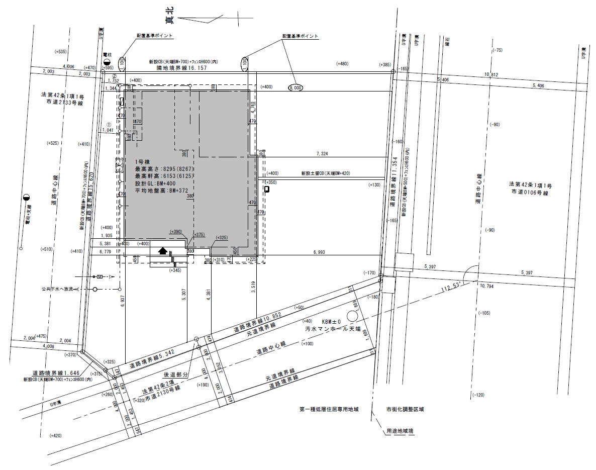
| 所在地 | 茨城県常陸太田市磯部町 |
| 交通/最寄駅 | JR水郡線『谷河原』駅徒歩4分 |
| 間取り | 4LDK |
| 土地面積 | 229.70㎡(69.48坪) |
| 建物面積 | 113.36㎡(34.29坪) |
| 築年月 | 2026年6月完成予定 |
| 都市計画 | 市街化区域 |
| 用途地域 | 第一種低層住居専用地域 |
| 建ぺい率 | 50% |
| 容積率 | 80% |
| 権利 | 所有権 |
| 建築確認番号 | 第25UDI1W建13282号 |
| 地目 | 宅地 |
| 現況 | 建築中 |
| 引渡 | 相談 |
| 設備 | 東京電力・プロパンガス・公営水道・本下水 |
| 接道 | 南側10.79m公道、西側4.0m公道、北側4.0m公道 |
| 取引形態 | 一般 |
| 学区 | 峰山小学校/峰山中学校 |
| 詳細情報 | 陽当り良好 最寄り駅徒歩4分 |
| 資料 | |
| こだわりアイコン | |
| 更新日時 | 登録:2026年03月06日 18時21分 更新:2026年03月06日 18時49分 |













